EXHIBITION ROOM
エキシビションルーム
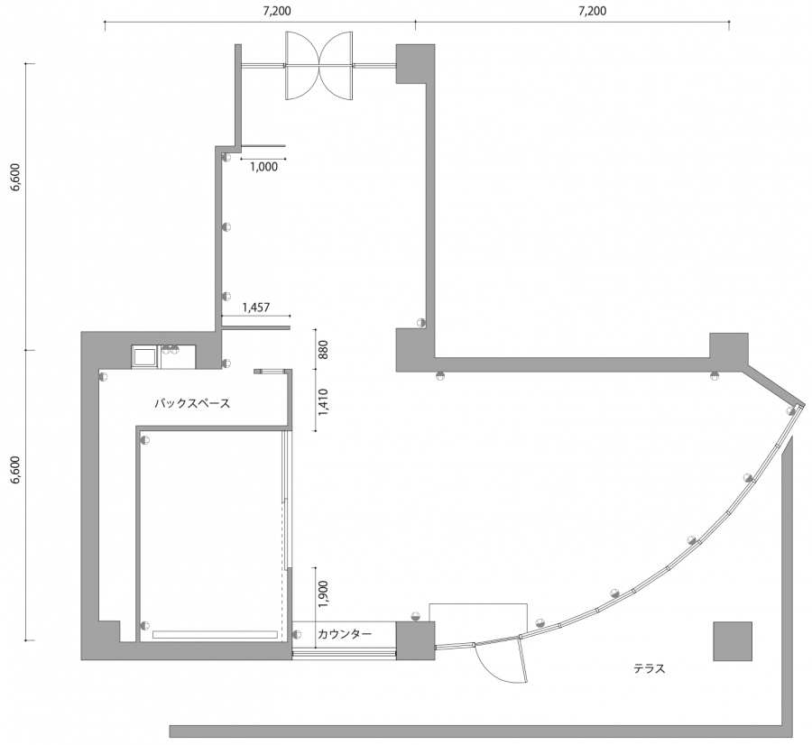
小展示会、ギャラリー、セミナー向き。窓が大きく開放感のあるスペース。



| 専用面積 | 120.59平方メートル |
|---|---|
| 収容人数 | 70名程度 |
| 壁 | べニアにクロス貼り、塗装 |
| 床 | フローリング(一部タイル貼り) |
| 設備 | ミニシンク(冷蔵庫)、予備室 |
| 付帯備品 | ピクチャーレール |
| 備考 | 駐車スペース1台分有 |
| 会場費 | 時間 | 料金 |
|---|---|---|
| 全日使用 | 9:00〜21:00 | 143,000円(税込) |
| 延長使用 | 1時間につき | 16,500円(税込) |
ご契約までの流れ
Step1
下記お問い合せフォームよりスケジュールのご相談
原則として使用日の1年前から1ヶ月前までご予約受付いたします。
Step2
予約・契約
使用概要、企画書等をご提出頂きます。 使用内容を審査させて頂き問題がないようでしたらお申込み用紙のご記入、ご提出をお願いします。 承認後、使用承認書と請求書を発行致します。
Step3
使用内容の打合せ
使用日の10日〜2週間前までに担当スタッフと最終的な打合せ(搬入出、レイアウト、タイムスケジュール等)をお願いします。


